Vraagprijs   € 2.950 p.m. ex.  

Verhuurd

Omschrijving

A truly unique combination of style, comfort, and location – an exceptional opportunity to live directly on the Dutch coast!

On a prime and historic location – directly on the boulevard and beach of Scheveningen – lies this one-of-a-kind, fully furnished ground-floor apartment. Recently renovated to a high standard, the home combines authentic charm with modern luxury and offers a front and back garden, two spacious bedrooms, two bathrooms, a luxury kitchen, and a large basement.

Here you’ll enjoy the ultimate coastal lifestyle: panoramic, year-round views of the beach and sea, just steps away from the vibrant harbor, Scheveningen-Bad with its restaurants, cinema, theater, and casino, and the charming Keizerstraat with its wide range of shops.
The city center of The Hague is within 15 minutes and highways towards Amsterdam, Utrecht, and Rotterdam are easily accessible.

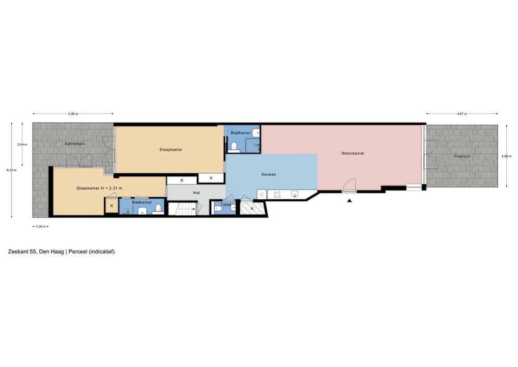
LAYOUT:
Front garden, entrance through an original classic front door, communal hallway with meter cupboards, and apartment entrance.
Stylish and spacious living room with fantastic sea views, French doors leading to the front garden and a luxurious open-plan kitchen with SMEG (built-in) appliances (induction hob, oven, extractor hood, dishwasher, fridge/freezer).
Master bedroom with built-in wardrobes, air conditioning, en-suite bathroom (walk-in shower, vanity, toilet) and French doors to the sheltered back garden.
Hallway with (guest) toilet, ample storage space including a built-in wardrobe, and door to the spacious basement; second spacious bedroom also with French doors leading to the back garden, and a second bathroom with a walk-in shower, vanity, and third toilet. Adjacent closet with a washing machine and dryer.
Except for the wet rooms, the entire apartment features beautiful wooden floors.

Highlights:
* Direct and uninterrupted sea and beach views
* Fully furnished and move-in ready
* Two bedrooms and two luxury bathrooms
* Front and back garden for outdoor enjoyment
* High-quality finishes and ample storage space
* Listed municipal monument (designed by architect Van Duyn, 1907)
* Quiet elevated location with only local traffic

Rental conditions:
- Available immediately
- Lease agreement for an indefinite period with a minimum of one year
- Rent: €2.950 per month, excluding utilities, TV, and internet
- Deposit: one month's rent
- No students or house sharers allowed

------------------------------------------------------------------------------------------------------------------------------------------
Een werkelijk unieke combinatie van stijl, comfort en locatie – een uitzonderlijke kans om direct aan de Nederlandse kust te wonen!

Op een prachtige en historische locatie -pal aan de boulevard en het strand van Scheveningen gelegen volledig gemeubileerd, recent hoogwaardig gerenoveerd parterre-appartement met voor- en achtertuin, luxe keuken, 2 badkamers, 2 slaapkamers en grote kelder.
Een unieke en een uitzonderlijke combinatie van stijl en comfort met het hele jaar door vrij uitzicht op strand en zee!

De woning ligt aan de verhoogde Zeekant, het rustige gedeelte waar alleen bestemmingsverkeer komt en is een gemeentelijk monument. Het maakt deel uit van de zes herenhuizen ontworpen door architect Van Duyn in 1907.

De gezellige Keizerstraat, de oorspronkelijke Scheveningse dorpskern met zijn grote diversiteit aan winkelaanbod, ligt om de hoek, maar ook voor de haven en Scheveningen-Bad met restaurants, bioscoop, theater en casino hoeft u slechts de voordeur achter u dicht te trekken en een kleine wandeling te maken.
Daarnaast is het centrum van Den Haag binnen ca 15 minuten bereikbaar en er zijn korte aanrijroutes naar snelwegen o.a. Amsterdam/ Utrecht/Rotterdam.

INDELING:
Voortuin, entree via imposante voordeur, gemeenschappelijke hal met meterkasten, entree appartement.
Royale sfeervolle living met fantastisch uitzicht, fraaie houten vloer en openslaande deuren naar de voortuin; luxe open keuken met SMEG (inbouw)apparatuur.
Master bedroom met vaste kasten, openslaande deuren naar de beschutte achtertuin, airconditioning en en suite badkamer met grote inloopdouche, wastafelmeubel en toilet.
Gang met (gasten)toilet, veel bergruimte o.a. vaste kastenwand, garderoberuimte en deur naar de ruime kelder.
Tweede ruime slaapkamer eveneens met openslaande deuren naar de achtertuin, tweede badkamer met inloopdouche, wastafelmeubel en 3e toilet. Naastgelegen vaste kast met wasmachine en wasdroger.
Afgezien van de natte ruimten is het gehele appartement voorzien van een fraaie houten vloer.

Highlights:
- Vrij uitzicht op strand en zee
- Volledig gemeubileerd
- Moderne, luxe open keuken
- Twee ruime slaapkamers beide grenzend aan de achtertuin
- Twee luxe badkamers
- Hoogwaardige afwerking
- Veel kast- en bergruimte
- Aparte wasruimte met nieuwe Whirlpool wasmachine en wasdroger
- Volledig voorzien van dubbele beglazing met geïsoleerde kozijnen

Huurcondities:
* Beschikbaar per direct
* Huurakte voor onbepaalde tijd met een minimum van 1 jaar
* Huurprijs: € 2.950,- per maand, exclusief nutsvoorzieningen, tv en internet
* Geen studenten of woningdelers toegestaan
* Waarborgsom: één maand huur

Kenmerken

Vraagprijs
€ 2.950 p.m. ex.
Inrichting
Gemeubileerd, Gestoffeerd
Status
Verhuurd
Oplevering
Per direct

Bouw

Soort appartement
Benedenwoning, Appartement
Woonlaag
1
Soort bouw
Bestaande bouw
Bouwjaar
1907
Onderhoud binnen
Uitstekend
Onderhoud buiten
Uitstekend
Bijzonderheden
Beschermd stads- of dorpgezicht, Monument, Toegankelijk voor ouderen

Oppervlakten en inhoud

Woonoppervlakte
112m²
Overig oppervlakte
10m²
Inhoud
450m³

Indeling

Aantal kamers
4
Aantal slaapkamers
2
Aantal badkamers
2
Verdiepingen
2
Voorzieningen
Airconditioning, TV-Kabel

Energie

Energielabel
C
Isolatie
Dubbel glas, Vloerisolatie
Warm water
C.V.-ketel
Verwarming
C.V.-ketel
Ketel
(Combi-ketel, Eigendom)

Buitenruimte

Ligging
Aan rustige weg, Vrij uitzicht, Zeezicht
Tuin
Achtertuin, Voortuin

Garage

Locatie

[{"address": "Zeekant55","zipCode": "2586 AC","city": "Den Haag","lat": 52.1084447,"lng": 4.2746521}]
[{"featureType":"water","elementType":"geometry","stylers":[{"color":"#e9e9e9"},{"lightness":17}]},{"featureType":"landscape","elementType":"geometry","stylers":[{"color":"#f5f5f5"},{"lightness":20}]},{"featureType":"road.highway","elementType":"geometry.fill","stylers":[{"color":"#ffffff"},{"lightness":17}]},{"featureType":"road.highway","elementType":"geometry.stroke","stylers":[{"color":"#ffffff"},{"lightness":29},{"weight":0.2}]},{"featureType":"road.arterial","elementType":"geometry","stylers":[{"color":"#ffffff"},{"lightness":18}]},{"featureType":"road.local","elementType":"geometry","stylers":[{"color":"#ffffff"},{"lightness":16}]},{"featureType":"poi","elementType":"geometry","stylers":[{"color":"#f5f5f5"},{"lightness":21}]},{"featureType":"poi.park","elementType":"geometry","stylers":[{"color":"#dedede"},{"lightness":21}]},{"elementType":"labels.text.stroke","stylers":[{"visibility":"on"},{"color":"#ffffff"},{"lightness":16}]},{"elementType":"labels.text.fill","stylers":[{"sa turation":36},{"color":"#333333"},{"lightness":40}]},{"elementType":"labels.icon","stylers":[{"visibility":"off"}]},{"featureType":"transit","elementType":"geometry","stylers":[{"color":"#f2f2f2"},{"lightness":19}]},{"featureType":"administrative","elementType":"geometry.fill","stylers":[{"color":"#fefefe"},{"lightness":20}]},{"featureType":"administrative","elementType":"geometry.stroke","stylers":[{"color":"#fefefe"},{"lightness":17},{"weight":1.2}]}]

Reageer

Uw bericht is naar ons verzonden. Wij nemen zo snel mogelijk contact met u op.

Sorry, we kunnen helaas niet met zekerheid vaststellen of u een mens of een geautomatiseerde bot/spammer bent. Hierdoor kunnen we het formulier dat u heeft ingevuld niet verzenden. Probeer het opnieuw of neem direct contact op met de makelaar via e-mail.

Er is iets mis gegaan met het versturen van het formulier.
Controleer of u alle velden (goed) heeft ingevoerd en probeer het nog een keer.

recaptcha
reCAPTCHA
PrivacyTerms
van

Goedemorgen 👋

Benieuwd naar de waarde van uw huis?

U weet het al binnen 1 minuut. Laten we beginnen!

Wat is de reden van uw aanvraag?
Ik wil graag...

Er zijn meerdere antwoorden mogelijk.

Wanneer wilt u verhuizen?

We zijn er bijna 🎉

Om het rapport op te maken hebben we een aantal gegevens nodig

recaptcha
reCAPTCHA
PrivacyTerms

Uw woningwaarde wordt berekend... 🚀

loading

Bedankt %name%! De woningwaarde van %address% is berekend 🥳

Check uw mail voor het rapport!

success
Wat is mijn huis waard?